CU80-300.
BMS
| 不。 | 主要參數 | 捲成型軋機參數 | ||
| 1。 | D滅火器 | 手動/液壓選擇 | 形成站 | 15步 |
| 2。 | 刀具材料 | CR12MOV | 根據 | H450. |
| 3. | 材料厚度 | 1.5-3.0mm. | 側壁厚度 | Q235 T30MM |
| 4。 | 液壓馬達 | 7.5 kW. | 軸 | 45#,φ80mm,φ75 |
| 5。 | 應用材料 | 鍍鋅板 | 主要電機功率 | 22 kW. |
| 6。 | 屈服強度 | 345-550MPa. | 螺栓螺栓 | 8.8級 |
| 7。 | 成型速度 | 25米/分鐘(沒有沖壓和切割速度) | 拉桿 | Ф22鍍鋅 |
| 8。 | 有效尺寸 | 作為客戶設計 | 滾筒 | GCR15(= EN31鋼),精密加工,硬鉻塗層 |
| 9。 | 控制系統 | PLC控制系統 | 處理模式 | CNC車床,聽到處理,硬鉻塗層,厚度0.04mm |
| 10。 | 測試材料 | BMS將在機床測試前2週提供飼養材料的尺寸 | ||
工作流程
折疊器→饋電裝置→沖孔裝置→輥式成型磨機→PLC系統液壓→液壓切割裝置→
退出架子
機器組件顯示

折疊機 捲成型磨機

餵養指南設備 產品申請案例
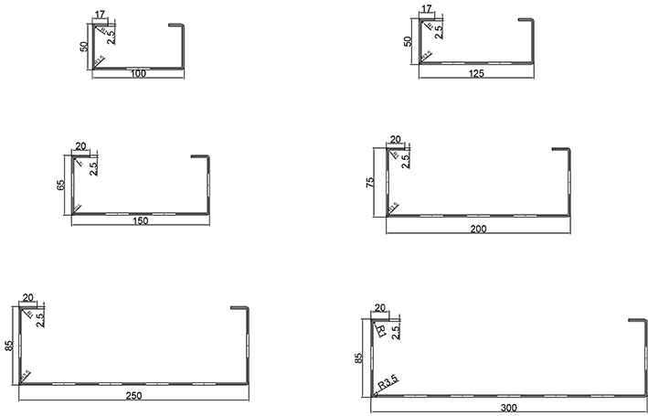
機器生產的產品

| 不。 | 主要參數 | 捲成型軋機參數 | ||
| 1。 | D滅火器 | 手動/液壓選擇 | 形成站 | 15步 |
| 2。 | 刀具材料 | CR12MOV | 根據 | H450. |
| 3. | 材料厚度 | 1.5-3.0mm. | 側壁厚度 | Q235 T30MM |
| 4。 | 液壓馬達 | 7.5 kW. | 軸 | 45#,φ80mm,φ75 |
| 5。 | 應用材料 | 鍍鋅板 | 主要電機功率 | 22 kW. |
| 6。 | 屈服強度 | 345-550MPa. | 螺栓螺栓 | 8.8級 |
| 7。 | 成型速度 | 25米/分鐘(沒有沖壓和切割速度) | 拉桿 | Ф22鍍鋅 |
| 8。 | 有效尺寸 | 作為客戶設計 | 滾筒 | GCR15(= EN31鋼),精密加工,硬鉻塗層 |
| 9。 | 控制系統 | PLC控制系統 | 處理模式 | CNC車床,聽到處理,硬鉻塗層,厚度0.04mm |
| 10。 | 測試材料 | BMS將在機床測試前2週提供飼養材料的尺寸 | ||
工作流程
折疊器→饋電裝置→沖孔裝置→輥式成型磨機→PLC系統液壓→液壓切割裝置→
退出架子
機器組件顯示

折疊機 捲成型磨機

餵養指南設備 產品申請案例
機器生產的產品
